| Стоимость | Площадь | Планировки |
|---|---|---|
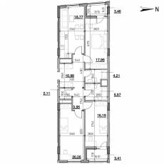
| 2.91 млн грн | 106.81 м² |
Посмотреть
|
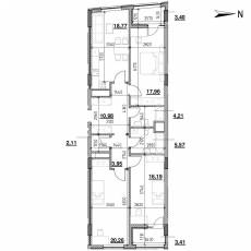
| 2.91 млн грн | 106.81 м² |
Посмотреть
|